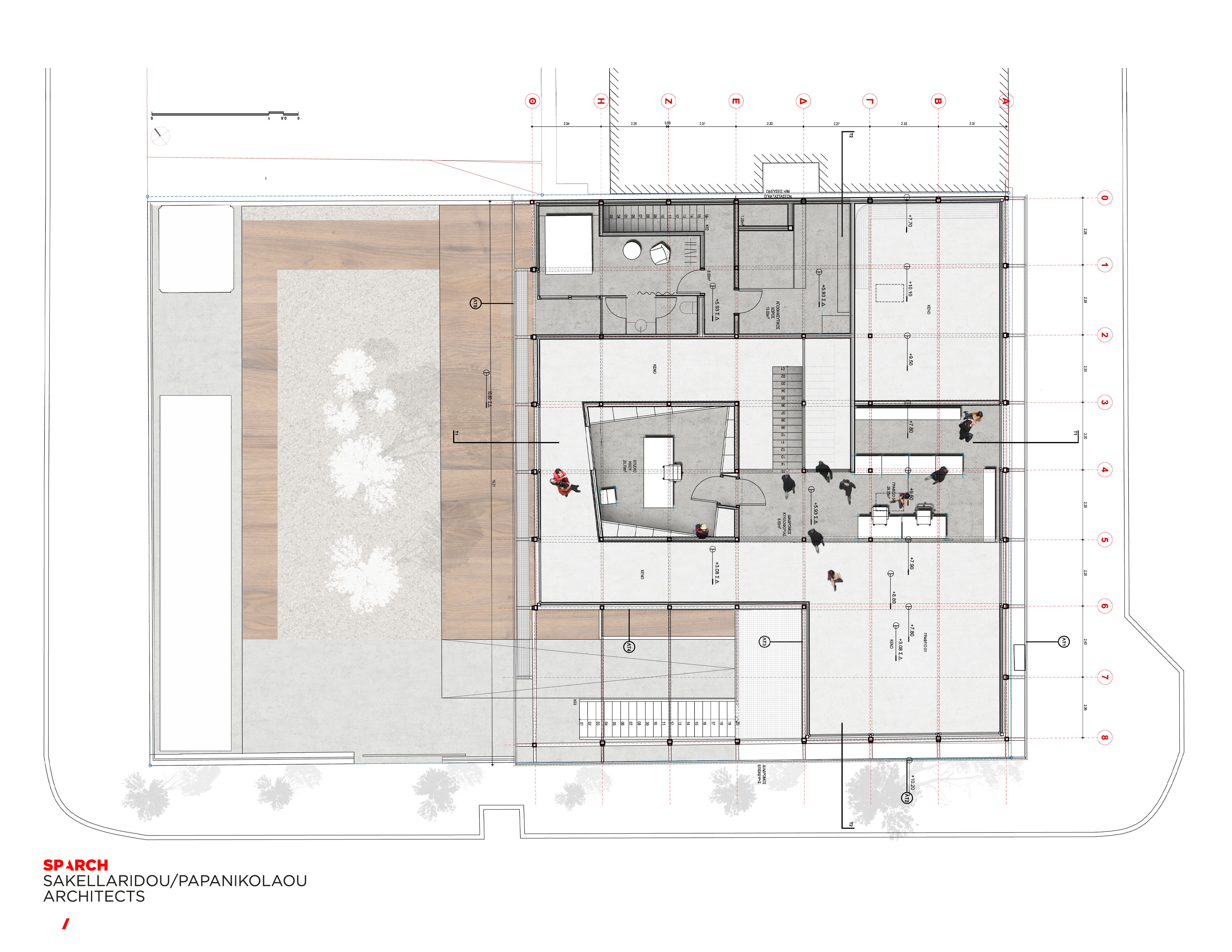
Beetroot Agency Office Building, Thessaloniki, GR
renovation + restoration
2015
design
SPARCH / Sakellaridou - Papanikolaou Architects
Participation as collaborating architect at preliminary study - final study,
2d drawings (plans, elevations, sections), physical model construction, construction details, communication
with multiple specialty engineers and collaborators
text















