︎
KONSTANTINOS
MOUSTAKAS
projects /
about /
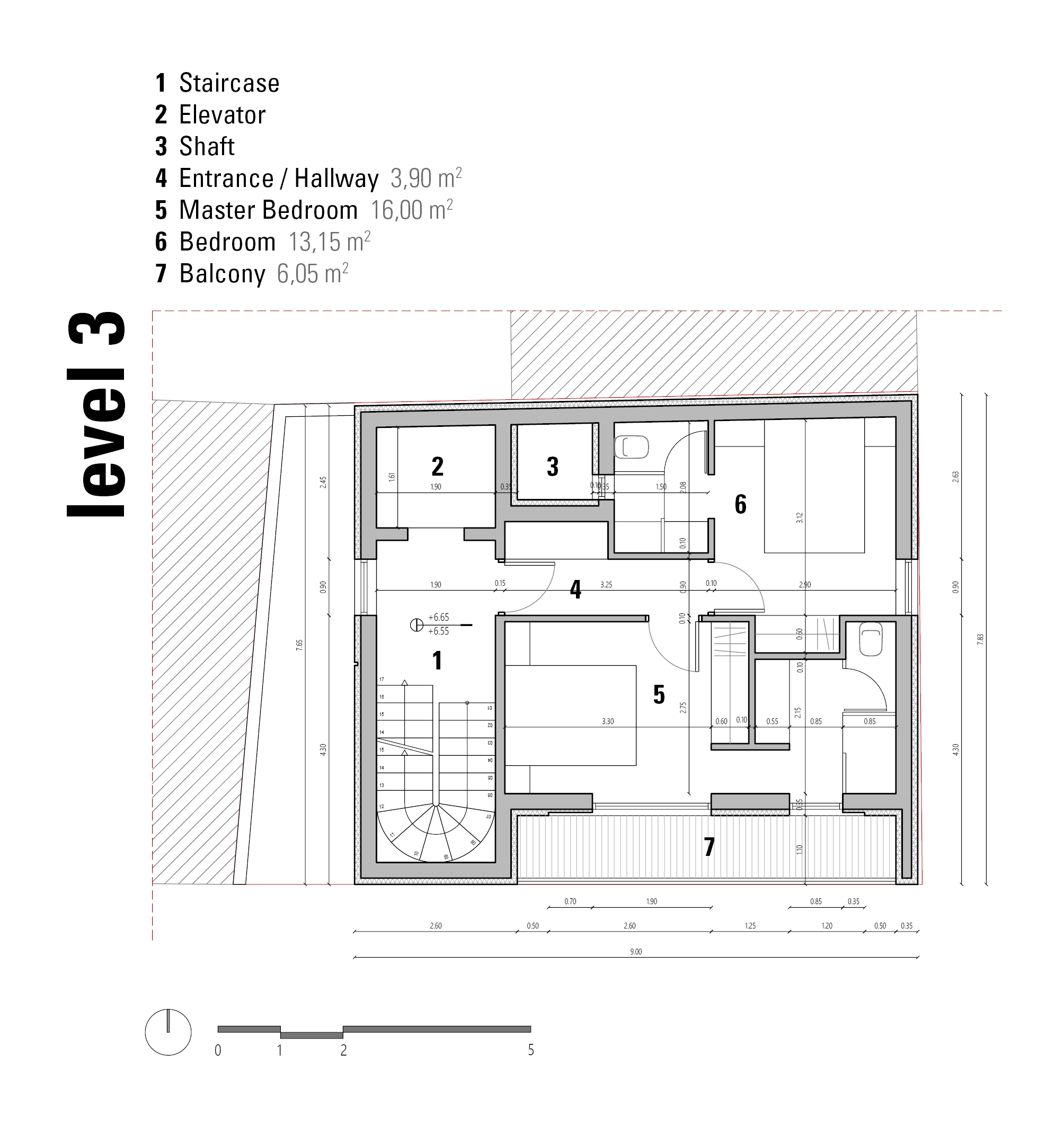
House + Shop, Amyntaio, GR
mixed use project
2018
text
︎
Mark