︎
KONSTANTINOS
MOUSTAKAS
projects /
about /
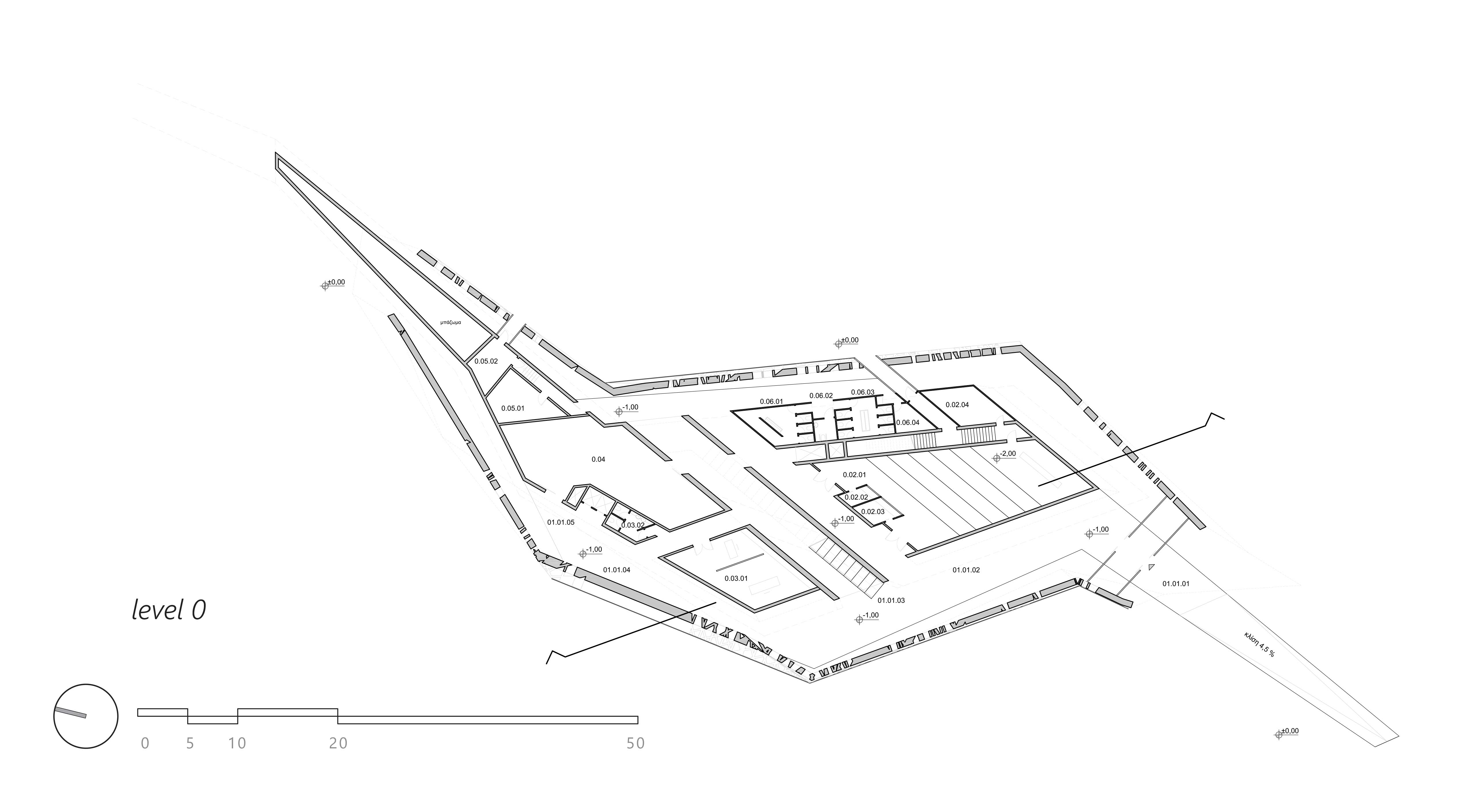
Cultural spaces / Museum
insight studio
2012
in collaboration with Kiriaki Georgiadou
supervisor_Eirini Sakellaridou
text
︎